Prodej bytu 3+1 96 m2 Valečov, Okrouhlice
Užitná plocha: 96 m2
Číslo podlaží: 1
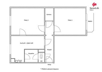
Nabízím ke koupi velký byt o dispozici 3+1 a užitné ploše přibližně 96 m² v obci Valečov, jen 1 km od Okrouhlice (9 km od Havlíčkova Brodu), kde naleznete kompletní občanskou vybavenost včetně ZŠ, MŠ, doktora, prodejny COOP a restaurace. Bytová jednotka se nachází v přízemí bytového domu, který má pouze 2 patra, sklepy a půdní prostor.
Byt je umístěn v krajní části domu a má okna na tři světové strany V, J, Z. Je tedy velkou část dne hezky prosluněný. Nabízí také krásný výhled na louku a daleký les. Parkování je pohodlné přímo u domu.
Vytápění a ohřev užitkové vody jsou řešeny relativně mladým vlastním plynovým kondenzačním kotlem. Byt je hezky suchý, dům nové odizolovaný drenáží s nopovou fólií.
K bytu náleží velký vlastní sklep o velikosti cca 37 m².
Pro více informací nebo domluvení prohlídky mne neváhejte kontaktovat.