Prodej stavebního pozemku 1118 m2, Nová Ves I

Plocha celková: 1118 m2 Číslo zakázky: 25307
Název: Prodej stavebního pozemku 1118 m2, Nová Ves I
Celková cena: 5 736 000 Kč
Adresa: Nová Ves I
Datum aktualizace: 14.04.2026
Stavba: Studna
Zástavba: Obytná
Ochrana:
Umístění: Okraj obce
Zdroj vody: Místní zdroj
Celková plocha: 1118 m²

Exkluzivně nabízím hotovou stavební parcelu v obci Nová Ves I u Kolína nedaleko sjezdu na dálnici D11, s vyřešenou přípravou stavby, včetně přípojek + studny a stavebního povolení. Celková plocha je 1 002 m2 plus ¼ podílu na hotové příjezdové komunikace (116 m2) tedy celkem 1 118 m2 a schválený projekt RD. Kupující neponese již žádné náklady spojené s příjezdovými cestami.
Součástí prodeje je i vlastní hotová elektrická přípojka včetně elektrorozvodné skříně a stavební zásuvky a přípojka kanalizace.
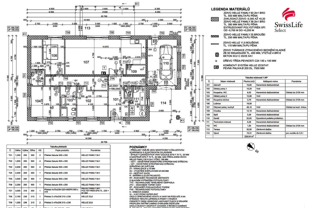
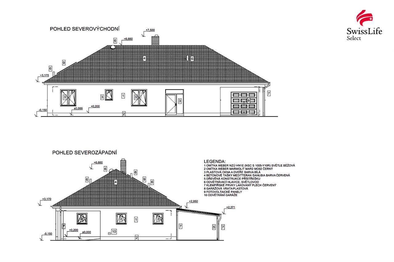
V ceně je i kompletní projektová dokumentace na RD včetně stavebního povolení o celkové zastavěné ploše 240 m2 a podlahová ploše 229,5 m2 včetně garáže.
Na pozemku je již hotová základová deska a obvodové zdivo po věnec a několik palet stavebního materiálu.
Celý pozemek je rovinatý, zbavená všech porostů a leží ve velice klidné části obce 4 km od Kolína, pouhých 300 metrů od vlakové zastávky na hlavní trati Praha - Kolín a 7 km od sjezdu na dálnici D11 s dojezdem do Prahy na Černý Most cca 30 min.
Pozemek možno financovat hypotéčním úvěrem, který vám zprostředkujeme a rádi vyřídíme.
Pro bližší informace a prohlídku mne kontaktujte.

Stavba Studna
Zástavba Obytná
Umístění Okraj obce
Zdroj vody Místní zdroj
Typ odpadu Veřejná kanalizace
Elektřina 230V, 380V
Celková plocha 1118 m²

ULOŽIT JAKO PDF

POSLAT EMAILEM

Umístění objektu

Kontaktní formulář

*
*
*

*

*

Potvrzuji, že v souvislosti s projevením zájmu o služby Swiss Life Select a.s. jsem se seznámil/a s Informačním memorandem pro potenciálního klienta a klienta.

Podobné nabídky