Prodej zemědělské usedlosti 620 m2, Lovečkovice

Užitná plocha: 620 m2 Pokojů: atypický Číslo zakázky: 22336
Název: Prodej zemědělské usedlosti 620 m2, Lovečkovice
Celková cena: 8 499 000 Kč

Včetně provize RK
poznámka k ceně

Adresa: Lovečkovice
Datum aktualizace: 13.10.2025
Druh objektu: Smíšená
Stav objektu: Velmi dobrý
Zástavba: Venkovská
Typ objektu: Samostatný
Typ domu: Patrový
Umístění: Klidná část obce

Unikátní Zemědělská Usedlost Knínice-Lovečkovice!

Nehledejte dál! Máme pro Vás skvostnou nabídku - zemědělskou usedlost v malebné obci Knínice-Lovečkovice, kde historie a moderní komfort splývají v jedinečném spojení.

Tato usedlost prošla nákladnou rekonstrukcí před zhruba 18 lety a od té doby září ve své plné kráse. S funkcionalitou v každém koutu nabízí mnoho možností využití a otevírá dveře k nekonečným příležitostem.

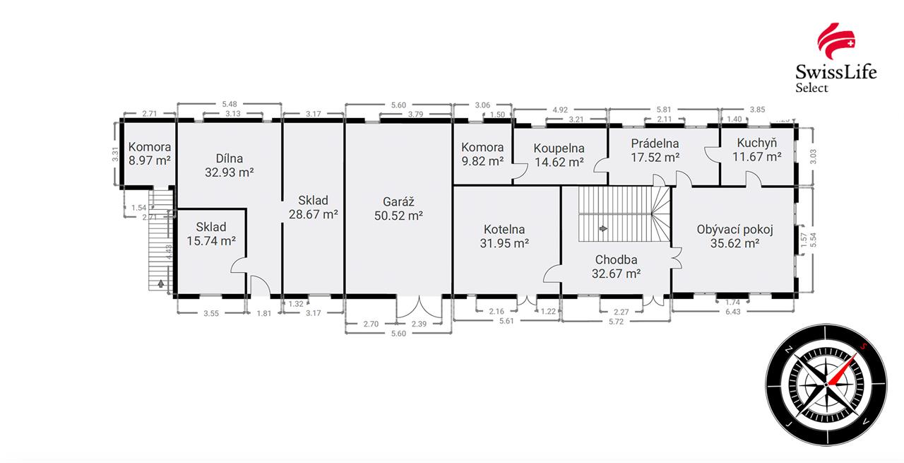
S rozlohou 620 m2 užitné plochy a dalšími 280 m2, které nabízí stodola, se Vám zde otevírají dveře do světa možností. Zastavte se a přemýšlejte o vybudování několika bytů, vytvoření domu pro velké rodiny nebo zahájení investičního projektu na pořádání svateb - Vaše představy jsou jediným limitem.

Dům má obrovské množství pokojů a dalších prostor, včetně tanečního sálu, původních chlévů a garáže, které čekají, až se jimi budete moci inspirovat a proměnit je ve Vaše vlastní kouzelné útočiště.

Celková plocha pozemků, které jsou součástí této jedinečné nabídky, činí impozantních 6217 m2, poskytující dostatek prostoru pro Vaše nápady a plány.

Nechte se unést tímto zvláštním kouskem historie, který nabízí nekonečné možnosti, a dejte tomuto úžasnému místu nový život!

Pro více informací a domluvení prohlídky neváhejte a kontaktujte mě ihned, realitní makléř Milan Kaňkovský. Jsem připraven Vám pomoci uskutečnit Vaše sny!


V případě více zájemců o nemovitost, si majitel vyhrazuje právo prodat nemovitost zájemci s nejvyšší nabídkou.

Druh objektu Smíšená
Stav objektu Velmi dobrý
Zástavba Venkovská
Typ objektu Samostatný
Typ domu Patrový
Umístění Klidná část obce
Počet podlaží objektu 3
Stavba Rodinný dům
Zařízeno Ano
Půdní vestavba Ne
Parkování Ano
Sklep Ano
Garáž Ano
Bazén Ne
Typ odpadu Jímka
Příjezdová komunikace Asfaltová
Elektřina 230V, 380V
Doprava Silnice
Plocha zastavěná 436 m²
Plocha užitná 620 m²
Plocha pozemku 6217 m²
Třída energetické náročnosti budovy G - mimořádně nehospodárná

ULOŽIT JAKO PDF

POSLAT EMAILEM

Umístění objektu

Kontaktní formulář

*
*
*

*

*

Potvrzuji, že v souvislosti s projevením zájmu o služby Swiss Life Select a.s. jsem se seznámil/a s Informačním memorandem pro potenciálního klienta a klienta.

Podobné nabídky