Prodej rodinného domu 122 m2, Skalka |
|
| Užitná plocha: 122 m2 | Pokojů: 4 Číslo zakázky: 22779 |
| Název: | Prodej rodinného domu 122 m2, Skalka | Celková cena: | 3 800 000 Kč |
| Adresa: | Skalka |
| Datum aktualizace: | 21.11.2025 |
| Druh objektu: | Panelová |
| Stav objektu: | Dobrý |
| Zástavba: | Obytná |
| Typ objektu: | Samostatný |
| Typ domu: | Patrový |
| Umístění: | Okraj obce |
Představte si život v krásné přírodě nedaleko malebných Chřibů.
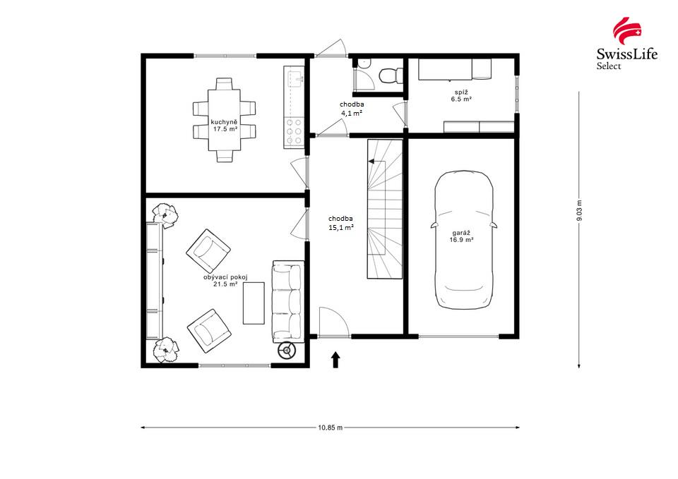
Rodinný dům z roku 1985 s velkou zahradou v obci Skalka u Kyjova čeká na nového majitele, který ocení velkorysý prostor domu. Přijďte objevit potenciál této nemovitosti. Dům je v původním, udržovaném stavu a nabízí čtyři prostorné pokoje, kuchyň, spíž, garáž. K domu je také možné dokoupit nedaleký vinný sklípek.
Velká zahrada je ideální pro relaxaci, odpočinek nebo pěstování ovoce, zeleniny a třeba i vína. Na pozemku se nachází studna a hospodářská budova, které zvyšují užitnou hodnotu nemovitosti. Dům je podsklepený, což poskytuje další úložný prostor nebo možnost vybudování hobby místností, například sauny nebo posilovny.
Plocha pozemku celkem: 1 266 m²
Užitná plocha RD: 122 m²
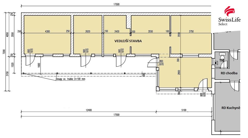
Sklepní podlaží: 50 m²
Půda: 70 m²
Zahrada: 766 m²
Stavební pozemek: 500 m²
Zastavěná plocha domu: 98 m²
Zastavěná plocha vedlejší stavby: 92 m²
Garáž: 17 m²
Vinný sklep: 36 m²
Lokalita Skalka u Kyjova nabízí klidné venkovské prostředí s dobrou dostupností do města Kyjov (9 km), kde najdete veškerou občanskou vybavenost včetně škol, obchodů a zdravotnických zařízení. Autobusová zastávka se nachází přímo u domu. Oblast je známá vinařstvím, folklorními tradicemi a krásnou přírodou Chřibů. Neváhejte a přijďte se podívat na tento dům, který čeká na nového majitele.
V případě více zájemců o nemovitost, si majitel vyhrazuje právo prodat nemovitost zájemci s nejvyšší nabídkou.
| Druh objektu | Panelová |
| Stav objektu | Dobrý |
| Zástavba | Obytná |
| Typ objektu | Samostatný |
| Typ domu | Patrový |
| Umístění | Okraj obce |
| Počet podlaží objektu | 2 |
| Stavba | Rodinný dům |
| Zařízeno | Ano |
| Bezbariérové | Ne |
| Výtah | Ne |
| Půdní vestavba | Ne |
| Podzemní podlaží | 1 |
| Balkón | Ano |
| Plocha balkónu | 5 m² |
| Parkování | Ano |
| Sklep | Ano |
| Garáž | Ano |
| Bazén | Ne |
| Zdroj vody | Místní zdroj |
| Rozvod topení | Ústřední plynové |
| Rozvod plynu | Plynovod |
| Typ odpadu | Veřejná kanalizace, Septik |
| Příjezdová komunikace | Asfaltová |
| Telekomunikace | Telefon |
| Elektřina | 230V, 380V |
| Doprava | Silnice, Autobus |
| Plocha zastavěná | 190 m² |
| Plocha užitná | 122 m² |
| Plocha pozemku | 1266 m² |
| Plocha zahrady | 766 m² |
| Rok výstavby | 1984 |
| Rok kolaudace | 1985 |
| Třída energetické náročnosti budovy | G - mimořádně nehospodárná |
Umístění objektu
Nic nenalezeno