Sleva
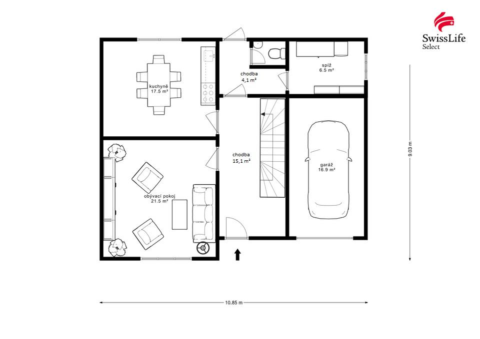
Užitná plocha: 153 m2 Pokojů:5 a více
Moderní řadový dům na venkově s nadstandardní výbavou Zamilujte si kombinaci moderního života a venkovského klidu! Nabízíme vám exkluzivní příležitost vlastnit prostorný řadový rodinný dům, který splňuje veškeré nároky moderního života. Nachází se v malebné obci Starovice, pouhých 35 minut od centra Brna, takže můžete mít příslovečné obojí - klid venkova a pohodlný přístup do města. Tento dům je vybaven nejnovějšími technologiemi, což zaručuje nejenom pohodlí, ale i úsporu nákladů na bydlení. Máte-li rádi inovace a technologie, tento dům je pro vás tou pravou volbou. Jeho výbava zahrnuje: Fotovoltaickou elektrárnu: Snížení nákladů na elektřinu a šetrnost k životnímu prostředí. Tepelné čerpadlo: Efektivní vytápění a snížení nákladů na energie. Úpravnu vody: Čistá a kvalitní voda přímo z vlastního zdroje. Prvotřídní materiály: Dům je postaven z kvalitních materiálů, které zajišťují dlouhou životnost, minimální údržbu a úsporné bydlení v energetické třídě A. Dispozice domu je velmi praktická a prostorná. Vstupní chodba s vestavnou úložnou stěnou Vás přivede do otevřeného obývacího prostoru kde nechybí zóna pro relaxaci, rodinný jídelní stůl a moderní kuchyňské linka. Velké francouzské okno s posuvnými dveřmi Vás vtáhne na venkovní terasou vhodnou pro relaxaci a grilování. V přízemí dále najdete jeden pokoj, technickou místnost, toaletu a koupelnu. Na patře se nacházejí 2 menší ložnice, hlavní ložnice, šatna a rodinná koupelna. Přístupná půda pak poskytuje dostatek úložného prostoru. Poloha domu v obci Starovice je ideální pro ty, kteří chtějí mít všechny výhody venkovského života a zároveň blízkost k městu. Obec nabízí veškerou občanskou vybavenost, včetně mateřské školy, a základní škola je v nedalekých Hustopečích. Díky blízkosti dálnice D2 je snadný přístup do Brna. Dům byl zkolaudován v roce 2023 a je kompletně vybaven. Dokončená je i okrasná zahrada. Před domem je parkování pro 2 auta a jedno zastřešené parkovací stání. Nastěhování se do tohoto domu je bezstarostné a bez nutnosti dalších investic. Nezmeškejte tuto jedinečnou příležitost a kontaktujte nás ještě dnes a domluvte si prohlídku! V případě více zájemců o nemovitost, si majitel vyhrazuje právo prodat nemovitost zájemci s nejvyšší nabídkou.
Více informací
12 500 000 Kč
Sleva
Plocha: Podlaží: 4
Design, prostor, potenciál. Stačí vstoupit. Tento střešní byt 3+kk s galerií je skutečným architektonickým originálem. Vznikl v roce 2005 pod rukama renomovaného ateliéru OOOOX. Byl mezi finalisty soutěže Český interiér roku, a dodnes z něj dýchá moderní design. Nachází se na adrese Selská, Brno – Maloměřice/Obřany, v tiché rezidenční čtvrti obklopené zelení, jen pár minut od centra města. Ideální místo pro ty, kdo chtějí mít přírodu v Brně na dosah. Dispozice a vybavení Prostorný obývací prostor s kuchyní, který působí vzdušně a přirozeně propojuje zónu pro život i odpočinek Vestavěná galerie (mezipatro) nad ložnicí – architektonicky řešený prvek, který přináší soukromí i charakter prostoru Praktická dispozice kolem koupelny a funkčně uspořádané 3+kk Modernizace kuchyně a nové plovoucí podlahy v roce 2015 Byt se prodává včetně kompletního vybavení – můžete se jednoduše nastěhovat a začít bydlet. Možnost rozšíření Jedinečnou předností tohoto bytu je možnost vybudování dalšího pokoje a střešní terasy s výhledem do okolní přírody. Tento potenciál rozšiřuje jak komfort pro bydlení, tak i investiční hodnotu nemovitosti. Lokalita Maloměřice/Obřany patří mezi nejvyhledávanější brněnské čtvrti – spojují klid přírody s dostupností centra. Jen pár minut od domu vede cyklostezka podél řeky Svitavy, ideální pro běh, procházky i víkendové projížďky na kole. V okolí najdete vše potřebné: obchody, kavárny, školy, školky, MHD i příjemná místa pro odpočinek. Proč právě tento byt ✨ Originální návrh ateliéru OOOOX – architektonický podpis, který má hodnotu Střešní poloha o velikosti 34 m2 s možností rozšíření o pokoj a terasu Příroda i město na dosah – ideální rovnováha Galerie jako designový i funkční prvek Okamžitě k nastěhování – vše je připraveno Tento byt není jen místem k bydlení. Je to prostor s charakterem, kde se potkává design, funkčnost a klid – ideální pro mladou dvojici, jednotlivce nebo investora, který ocení architekturu s příběhem. Součástí naší nabídky je i kompletní služba finančního poradenství – rádi Vám pomůžeme zajistit výhodné financování této nemovitosti na míru vašim potřebám. V případě více zájemců o nemovitost, si majitel vyhrazuje právo prodat nemovitost zájemci s nejvyšší nabídkou.
Více informací
9 900 000 Kč
Rezervace
Užitná plocha: 122 m2 Pokojů:4
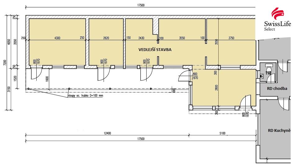
Představte si život v krásné přírodě nedaleko malebných Chřibů. Rodinný dům z roku 1985 s velkou zahradou v obci Skalka u Kyjova čeká na nového majitele, který ocení velkorysý prostor domu. Přijďte objevit potenciál této nemovitosti. Dům je v původním, udržovaném stavu a nabízí čtyři prostorné pokoje, kuchyň, spíž, garáž. K domu je také možné dokoupit nedaleký vinný sklípek. Velká zahrada je ideální pro relaxaci, odpočinek nebo pěstování ovoce, zeleniny a třeba i vína. Na pozemku se nachází studna a hospodářská budova, které zvyšují užitnou hodnotu nemovitosti. Dům je podsklepený, což poskytuje další úložný prostor nebo možnost vybudování hobby místností, například sauny nebo posilovny. Plocha pozemku celkem: 1 266 m² Užitná plocha RD: 122 m² Sklepní podlaží: 50 m² Půda: 70 m² Zahrada: 766 m² Stavební pozemek: 500 m² Zastavěná plocha domu: 98 m² Zastavěná plocha vedlejší stavby: 92 m² Garáž: 17 m² Vinný sklep: 36 m² Lokalita Skalka u Kyjova nabízí klidné venkovské prostředí s dobrou dostupností do města Kyjov (9 km), kde najdete veškerou občanskou vybavenost včetně škol, obchodů a zdravotnických zařízení. Autobusová zastávka se nachází přímo u domu. Oblast je známá vinařstvím, folklorními tradicemi a krásnou přírodou Chřibů. Neváhejte a přijďte se podívat na tento dům, který čeká na nového majitele. V případě více zájemců o nemovitost, si majitel vyhrazuje právo prodat nemovitost zájemci s nejvyšší nabídkou.
Více informací
3 700 000 Kč