Prodej chalupy 90 m2, Bezděčí u Trnávky

Užitná plocha: 90 m2 Pokojů: 4 Číslo zakázky: 24394
Název: Prodej chalupy 90 m2, Bezděčí u Trnávky
Celková cena: 3 490 000 Kč

Včetně provize RK
poznámka k ceně

Adresa: Bezděčí u Trnávky
Datum aktualizace: 15.01.2026
Druh objektu: Smíšená
Stav objektu: Dobrý
Zástavba: Venkovská
Typ objektu: Samostatný
Typ domu: Přízemní
Umístění: Okraj obce

Skromná a přitom vyzývavá je tahle milá malá usedlost, kterou můžete hned začít užívat jako víkendovou, nebo celotýdenní chalupu. Voda teče, světlo svítí a kamna topí. Jakmile vstoupíte do průjezdu, zaujme vás malý dvorek, kde si ještě v pyžamu můžete vypít hrnek vaší ranní kávy. Možná si vás dřív přitáhne lavička v zahradě, do které se opírá slunce. Vystavíte mu tvář a zaposloucháte se do ptačích árií. A nadechnete se vůně růží. A je tu božský klid.

Chalupu původně postavenou ve stylu lidové architektury najdete v Bezděčí u Trnávky. Ves se 170 obyvateli se kdysi uvelebila na pomezí Boskovické brázdy a Zábřežské vrchoviny, lesy a louky jsou za humny.
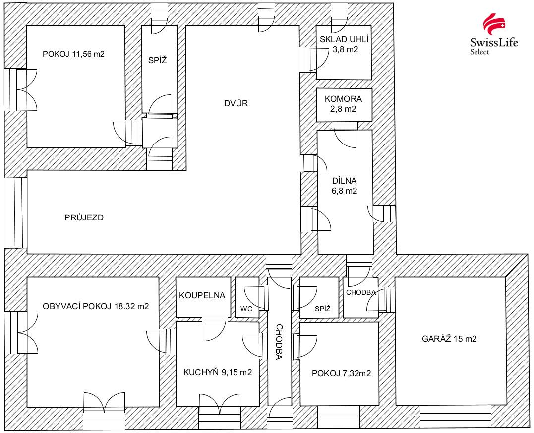
Osloví vás klidným místem, ve kterém se nachází. Nad obytnými a hospodářskými částmi situovanými do "U" je rozsáhlý půdní prostor. V přízemí jsou obytné čtyři menší útulné místnosti. Velký pokoj (18,5 m2) a kuchyň (9 m2) s novější koupelnou (3,4 m2) jsou orientované na jihozápad a západ; úzká síň a ložnice (7,3 m2) na jihozápad. Podlahy v kuchyni, chodbě a koupelně jsou pokryty dlažbou. V obýváku je původní prkenná podlaha, v ložnici betonová. Síň je obložená dřevem a propojuje zahradu s dvorkem.
Dvorek (24 m2) skýtá naprosté soukromí. Několika kroky jím přeběhnete do vejminku (11,5 m2), který je rovněž v původním stavu. Osloví vás pokoj s předsíní a komůrkou, ze které je dostupná i půda nad touto částí domu. Elektřina zde je, vodu a odpad sem můžete dobudovat a výměnek vyžívat pro ubytování hostů, nebo sem „uklidit“ vnoučata.
Ze dvorku je přístupná i hospodářská část s bývalými chlévy, které jsou stavebně původní a vy si je proměníte podle svých představ. Současný majitel je využíval jako malou zámečnickou a truhlářskou dílnu a sklady. Do kamenné stodoly (15 m2) se dostanete i od obecní cesty a ze zahrady. Máte příležitost proměnit ji v letní zázemí, nebo v ní vybudovat další prostor pro bydlení. Plechová garáž stojí na pozemku vedle domu zcela samostatně.

Dva ze tří funkčních komínů jsou využívány pro lokální vytápění kamny na dřevo. Čtyři fotovoltaické panely na střeše zajišťují ohřev vody v elektrokotli o objemu 80 litrů a vytápí i elektrický radiátor v ložnici. Dům má připojení na internet.

Současní majitelé chalupu zachránili, když nad všemi objekty pořídili novou střechu a vyměnili okna a vstupní dveře. Stavební úpravy k zabránění vlhkosti započali otlukem některých zdí zevnitř, dále však nepokračovali. Dům se pravidelně vytápí a nyní je suchý.

Oplocená zahrada na jihozápad má 411 m2. Přes obecní travnatou cestičku a potok k domu patří 688 m2 trvalého travního porostu ve stráni (nyní pokryté náletovými křovinami a stromy). Svádí to vyšplhat se nahoru a rozhlédnout se po kraji. Je na co koukat.

Do Městečka Trnávky (5 km) nedohlédnete, do Jevíčka i Moravské Třebové dojedete autem za 16 minut, do Boskovic i Mohelnice za půl hodiny.
Nejlépe je však vyrazit na výšlap a na kolo. Trasy jsou hned za humny.

Těším se na váš zájem. Pomohu i s financováním.

.


Druh objektu Smíšená
Stav objektu Dobrý
Zástavba Venkovská
Typ objektu Samostatný
Typ domu Přízemní
Umístění Okraj obce
Počet podlaží objektu 1
Stavba Budova
Zařízeno Částečně
Bezbariérové Ne
Výtah Ne
Půdní vestavba Ne
Parkování Ano
Lodžie Ne
Sklep Ne
Garáž Ano
Bazén Ne
Zdroj vody Dálkový vodovod
Rozvod topení Lokální tuhá paliva, Lokální elektrické
Typ odpadu Septik
Příjezdová komunikace Asfaltová
Telekomunikace Internet
Elektřina 230V, 380V, 400V
Doprava Silnice
Plocha zastavěná 320 m²
Plocha užitná 90 m²
Plocha podlahová 128 m²
Plocha pozemku 1099 m²
Rok výstavby 1920
Rok rekonstrukce 2020
Třída energetické náročnosti budovy G - mimořádně nehospodárná

ULOŽIT JAKO PDF

POSLAT EMAILEM

Umístění objektu

Kontaktní formulář

*
*
*

*

*

Potvrzuji, že v souvislosti s projevením zájmu o služby Swiss Life Select a.s. jsem se seznámil/a s Informačním memorandem pro potenciálního klienta a klienta.

Podobné nabídky