Prodej bytu 2+kk 60 m2 náměstí Jana Karafiáta, Jimramov |
|
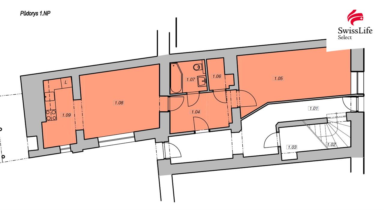
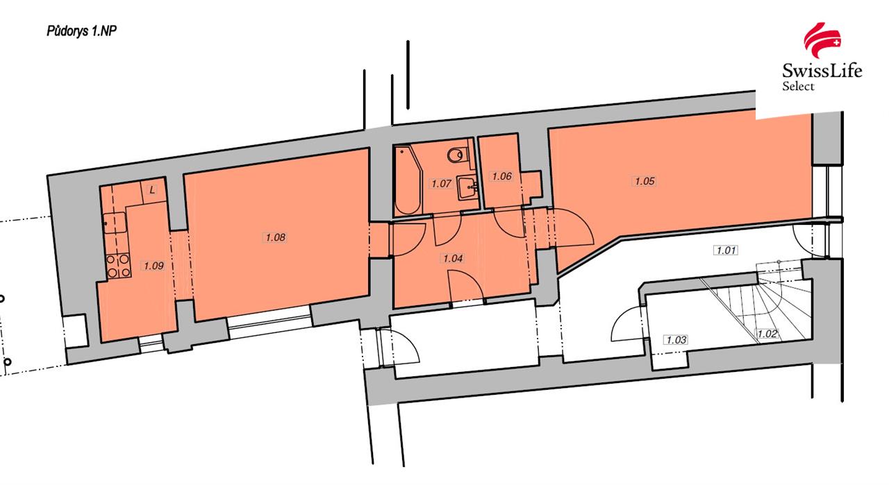
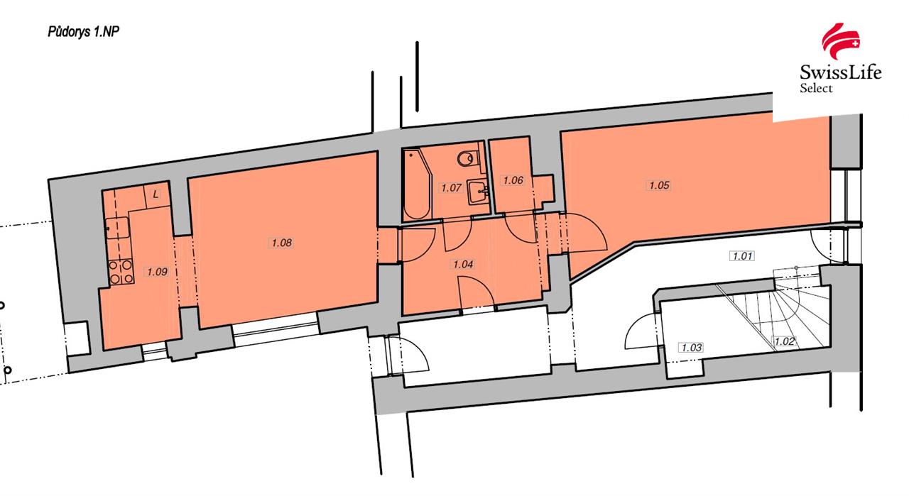
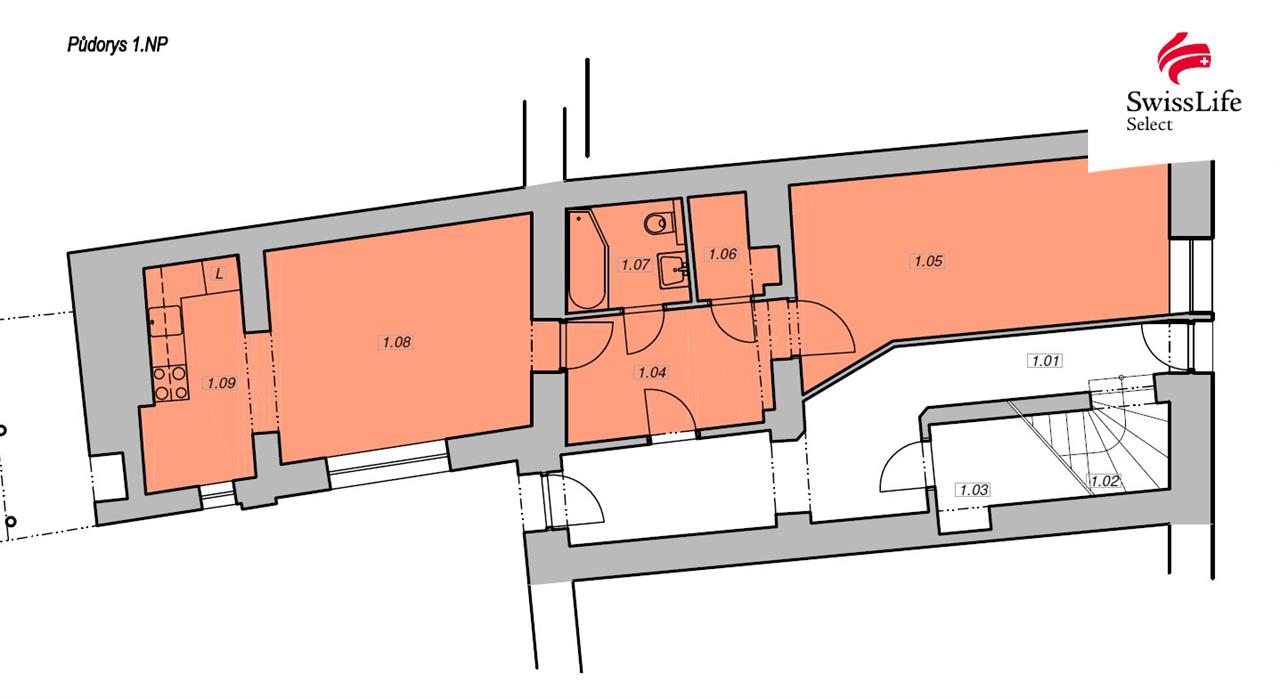
| Užitná plocha: 60 m2 | Číslo podlaží:1 Číslo zakázky: 24795 | Celková cena: | 3 250 000 Kč |
| Adresa: | náměstí Jana Karafiáta, Jimramov |
| Datum aktualizace: | 08.01.2026 |
| Druh objektu: | Smíšená |
| Stav objektu: | Dobrý |
| Zástavba: | |
| Vlastnictví: | Osobní |
| Zařízeno: | |
| Počet podlaží celkem: | 3 |
| Číslo podlaží: | 1 |
Nabízím k prodeji krásný, čistý byt o dispozici 2+kk a o užitné ploše přibližně 60 m², který právě prošel zdařilou rekonstrukcí/výstavbou. Nachází se v menším domě se třemi nově vytvořenými bytovými jednotkami na klidné ulici Jana Karafiáta v srdci Jimramova.
Interiér působí velmi moderně a útulně – nová kuchyňská linka, el. vyhřívané podlahy, dveře, rozvody, koupelna i veškeré povrchy. Dispozice 2+kk poskytuje dostatek prostoru pro pohodlné bydlení jednotlivce, páru či menší rodiny. Součástí tohoto bytu je navíc sklepní prostor pod schody v přízemí.
Dům stojí v klidné části obce s výbornou dostupností do centra i přírody. Parkování pohodlné před domem nebo přes ulici.
S bytem se prodává podíl na zahradě za domem, která má rozlohu 378 m². Součástí domu je také menší stavení využitelné jako skladovací prostory pro jednotlivé byty.
Jimramov nabízí vše potřebné pro pohodlný život:
• základní a mateřskou školu
• obchody s potravinami
• poštu, lékárnu a zdravotní středisko
• restaurace a kavárny
• krásné historické centrum, řeku a mnoho možností pro volnočasové aktivity
Pro více informací či domluvení prohlídky mě neváhejte kontaktovat.
| Druh objektu | Smíšená |
| Stav objektu | Dobrý |
| Ochrana | CHKO |
| Vlastnictví | Osobní |
| Výtah | Ne |
| Počet podlaží celkem | 3 |
| Číslo podlaží | 1 |
| Balkón | Ne |
| Parkování | Ano |
| Lodžie | Ne |
| Terasa | Ne |
| Sklep | Ano |
| Garáž | Ne |
| Zdroj vody | Dálkový vodovod |
| Rozvod topení | Lokální elektrické |
| Plocha užitná | 60 m² |
| Rok rekonstrukce | 2025 |
| Třída energetické náročnosti budovy | G - mimořádně nehospodárná |
Umístění objektu
Sleva
Užitná plocha: 36 m2 Číslo podlaží:3
Nabízím k prodeji krásný, čistý byt o dispozici 2 + kk a o užitné ploše přibližně 36 m², který právě prošel zdařilou rekonstrukcí/výstavbou. Nachází se v podkroví menšího domu se třemi nově vytvořenými bytovými jednotkami na klidné ulici Jana Karafiáta v srdci Jimramova. Interiér působí velmi moderně a útulně – nová kuchyňská linka, el. vyhřívané podlahy, dveře, rozvody, koupelna i veškeré povrchy. Dispozice 2 + kk tohoto bytu poskytuje dostatek prostoru pro pohodlné bydlení pro jednotlivce či páry. Dům stojí v klidné části obce s výbornou dostupností do centra i přírody. Parkování pohodlně před domem nebo přes ulici. S bytem se prodává také podíl na zahradě za domem, která má rozlohu 378 m². Součástí domu je také menší stavení využitelné jako skladovací prostory pro jednotlivé byty. Jimramov nabízí vše potřebné pro pohodlný život: • základní a mateřskou školu • obchody s potravinami • poštu, lékárnu a zdravotní středisko • restaurace a kavárny • krásné historické centrum, řeku a mnoho možností pro volnočasové aktivity Pro více informací či domluvení prohlídky mě neváhejte kontaktovat.
Více informací
2 390 000 Kč
Sleva
Užitná plocha: 74 m2 Číslo podlaží:2
Nabízím k prodeji krásný, čistý byt o dispozici 2+1 a o užitné ploše přibližně 74 m², který právě prošel zdařilou rekonstrukcí/výstavbou. Nachází se v menším domě se třemi nově vytvořenými bytovými jednotkami na klidné ulici Jana Karafiáta v srdci Jimramova. Interiér působí velmi moderně a útulně – nová kuchyňská linka, el. vyhřívané podlahy, dveře, rozvody, koupelna i veškeré povrchy. Dispozice 2+1 poskytuje dostatek prostoru pro pohodlné bydlení jednotlivce, páry či menší rodiny. Tento byt má vlastní balkón cca 6 m². Dům stojí v klidné části obce s výbornou dostupností do centra i přírody. Parkování pohodlně před domem nebo přes ulici. S bytem se prodává podíl na zahradě za domem, která má rozlohu 378 m². Součástí domu je také menší stavení využitelné jako skladovací prostory pro jednotlivé byty. Jimramov nabízí vše potřebné pro pohodlný život: • základní a mateřskou školu • obchody s potravinami • poštu, lékárnu a zdravotní středisko • restaurace a kavárny • krásné historické centrum, řeku a mnoho možností pro volnočasové aktivity Pro více informací či domluvení prohlídky mě neváhejte kontaktovat.
Více informací
3 950 000 Kč