Prodej rodinného domu 274 m2, Vysoký Újezd |
|
| Užitná plocha: 274 m2 | Pokojů: 5 a více Číslo zakázky: 23932 |
| Název: | Prodej rodinného domu 274 m2, Vysoký Újezd | Celková cena: | 19 700 000 Kč |
| Adresa: | Vysoký Újezd |
| Datum aktualizace: | 09.09.2025 |
| Druh objektu: | Cihlová |
| Stav objektu: | Ve výstavbě |
| Zástavba: | |
| Typ objektu: | Samostatný |
| Typ domu: | Patrový |
| Umístění: | |
Pokud hledáte dům kousek od Prahy, který má pozemek pouze s jedním sousedem a je těsně před dokončením, tak čtěte dál.
Nemovitost se nachází na strategicky umístěném pozemku s jediným sousedem, což zajišťuje maximální míru soukromí a klid. Ideální pro rodiny, které hledají rovnováhu mezi přírodou a dostupností do města.
Krásný, moderní rodinný dům ve vyhledávané lokalitě Vysoký Újezd, jen pár minut od Prahy. Dům je těsně před dokončením, což Vám dává jedinečnou možnost doladit interiér dle vlastních představ.
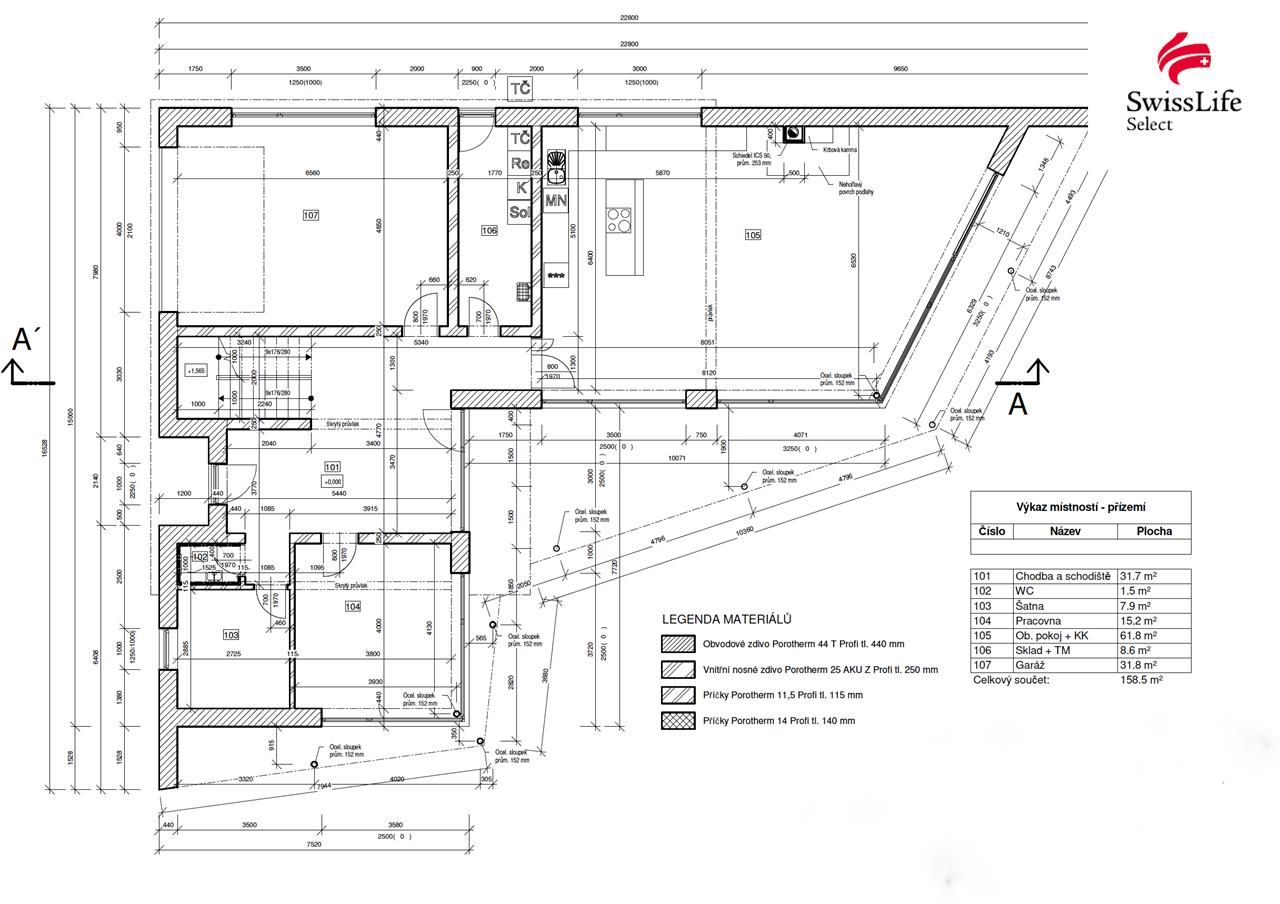
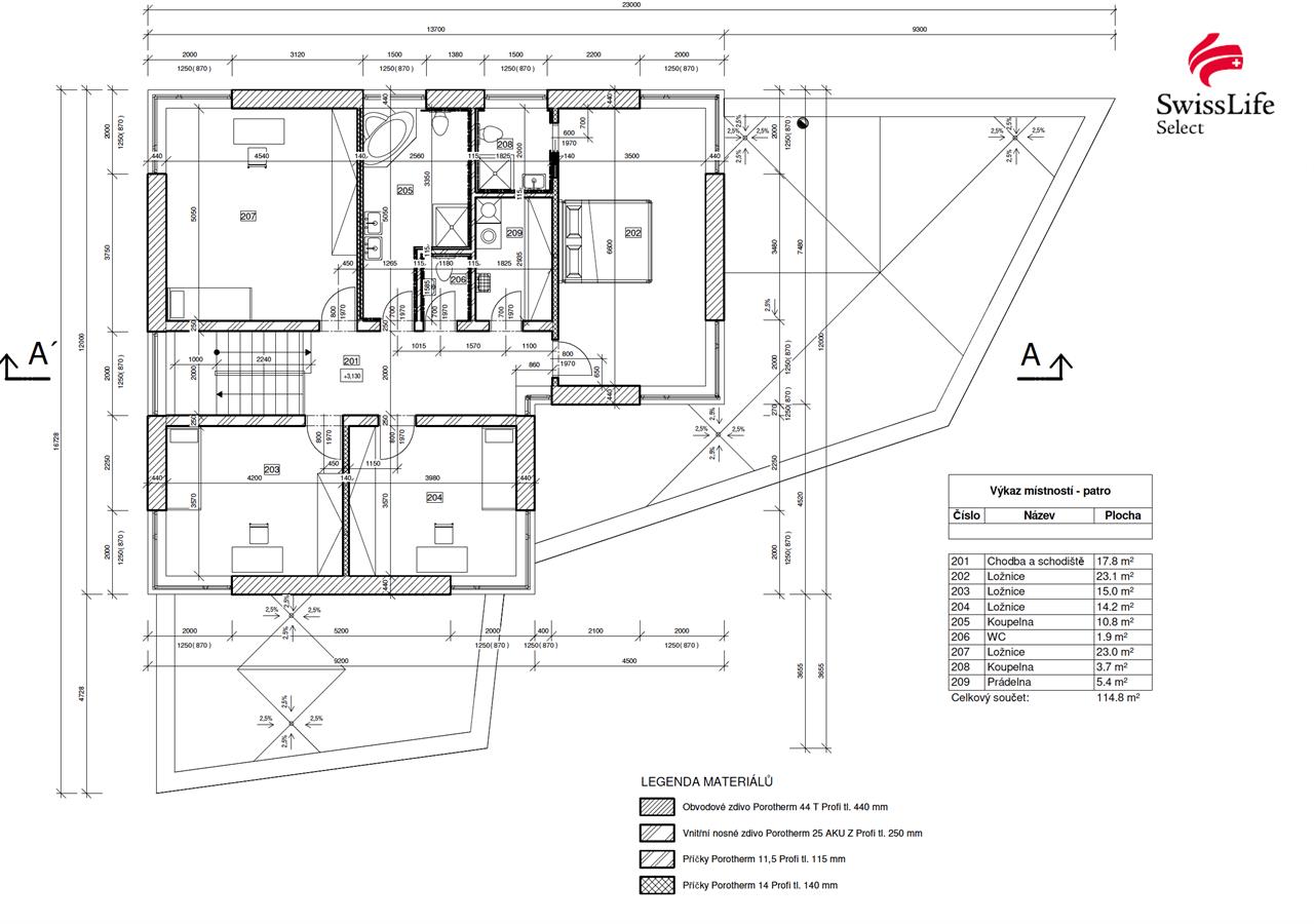
Podlahová plocha: 242 m²
Dispozice: 6+kk
Pozemek: 821 m²
Zastavěná plocha: 197 m²
Garáž: 32 m²
Tepelné čerpadlo
Podlahové topení v celém domě včetně garáže
Krbová vložka
Příprava na fotovoltaiku
Příprava na autonabíječku
Hliníková panoramatická okna
Kolaudace možná v krátké době
Možnost klientských změn ve finální fázi
Moderní technologie a nadstandardní materiály
Na domě se stále intenzivně pracuje a majitel je připraven vše dokončit dle preferencí nového vlastníka.
Přijďte se podívat, rád vás zde provedu.
| Druh objektu | Cihlová |
| Stav objektu | Ve výstavbě |
| Typ objektu | Samostatný |
| Typ domu | Patrový |
| Počet podlaží objektu | 2 |
| Zařízeno | Ne |
| Parkování | Ano |
| Plocha parkování | 40 m² |
| Sklep | Ne |
| Garáž | Ano |
| Plocha garáží | 32 m² |
| Bazén | Ne |
| Zdroj vody | Dálkový vodovod |
| Rozvod topení | Jiné |
| Typ odpadu | Veřejná kanalizace |
| Příjezdová komunikace | Asfaltová |
| Plocha zastavěná | 197 m² |
| Plocha užitná | 274 m² |
| Plocha pozemku | 821 m² |
| Rok kolaudace | 2025 |
| Třída energetické náročnosti budovy | A - mimořádně úsporná |
Umístění objektu
Sleva
Užitná plocha: 127 m2 Pokojů: 5 a více
Pokud hledáte bydlení kousek od Prahy, konkrétně ve Vysokém Újezdu, tak čtěte dál. Nabízíme k prodeji rozestavěný dvoupodlažní rodinný dům v atraktivní lokalitě Vysoký Újezd, ideální pro ty, kdo si chtějí dokončit bydlení podle vlastních představ. Dům stojí na rovinatém pozemku o velikosti 803 m², v klidné části obce s výbornou dostupností do Prahy. Majitel stavbu začal s pečlivostí rovnající se výstavbě rodinného sídla, ale okolnosti ho zavály jinam, proto rád přenechá, to co začal, někomu jinému. Na stavbě je mimo jiné materiál na kompletní komín a krovy. je možné zprostředkovat firmu na kompletní dostavbu. Rozměry v přízemí: Místnost Plocha (m²) 1. Zádveří 9,31 2. Chodba 4,92 2a. Schodiště 1,76 3. Obývací pokoj 25,75 4. Jídelní kout 15,25 5. Kuchyně 10,75 6. Koupelna 3,92 7. Garáž 15,25 8. Technická místnost 7,56 Součet 1. NP 94,47 m² Rozměry 1. Patro 11. Chodba 7,28 12. Schodiště 4,16 13. Ložnice 15,96 14. Pokoj 1 17,95 15. Pokoj 2 15,52 16. Koupelna 7,85 17. Pracovna 4,76 Součet 2. NP 73,48 m² Vysoký Újezd je klidná lokalita blízko přírody Možnost úprav dle vlastního vkusu Ideální pro rodinné bydlení či investici Kompletní projektová dokumentace k dispozici Vysoký Újezd je vyhledávanou lokalitou díky kombinaci příjemného prostředí, moderní zástavby a rychlého spojení do hlavního města. Přijďte se podívat osobně, rád vás zde provedu.
Více informací
11 990 000 Kč
Užitná plocha: 221 m2 Pokojů: 5 a více
Pokud hledáte krásný a plně vybavený dům 15min od Prahy, tak čtěte dál. Luxusní rodinný dům ve Vysokém Újezdu – nabízí komfort, styl a klid - navíc v těsné blízkosti Prahy. Výjimečný rodinný dům se nachází v prestižní lokalitě Vysoký Újezd, pouhých 15 minut jízdy od Prahy. Tato nemovitost spojuje moderní architekturu, špičkové materiály a promyšlený design. Základní informace: Dispozice: 6+kk 1. Patro 97 m2 2. Patro 124 m2 Celkově 221 m2 Garáž pro 2 vozy Venkovní stání pro 3 vozy Garáž 38m2 Pozemek 640m2 Energetická náročnost: A – velmi úsporná 2x toaleta 2x koupelna Prádelna Technická místnost Klíčové vlastnosti: Podlahové vytápění všude - včetně garáže Tepelné čerpadlo Příprava pro fotovoltaiku Kamerový zabezpečovací systém Prostorný obývací pokoj s krbem a přímým vstupem na terasu Prostorný obývací pokoj s krbem a přímým vstupem na terasu Designová kuchyňská linka s vestavnými spotřebiči Prostorná ložnice s vlastní šatnou Rovná, přehledná zahrada - jednoduchá na údržbu Soukromí, bezpečí a tichá rezidenční čtvrť Lokalita: Vysoký Újezd patří k nejžádanějším rezidenčním oblastem v okolí Prahy. V blízkosti je kompletní občanská vybavenost. Ideální pro ty, kdo hledají klidné a bezpečné bydlení na vysoké úrovni. Nejde jednoduše popsat co dům a lokalita nabízejí. Přijďte se podívat, rád vás zde provedu.
Více informací
Info o ceně u RK