Prodej komerční nemovitosti 6700 m2, Křenice

Užitná plocha: 1698 m2 Číslo zakázky: 18622
Název: Prodej komerční nemovitosti 6700 m2, Křenice
Celková cena: 6 990 000 Kč
Adresa: Křenice
Datum aktualizace: 19.06.2024
Druh objektu: Cihlová
Stav objektu: Dobrý
Zástavba:
Umístění:
Stavba:
Zařízeno:

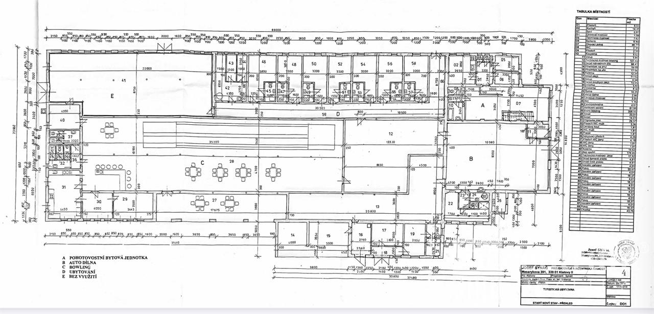
Nabízíme k prodeji zavedený bowlingový bar s kuchyní a zázemím k restauraci na více jak 600 m2, dále mezonetovou bytovou jednotkou cca 150 m2. Dříve v areálu také autodílna se zázemím - cca 80 m2. Momentálně se areál využívá jen k provozu bowlingu+restaurace a bydlení v přilehlém mezonetovém bytě. V areálu dalších cca 700 m2 nevyužívaného prostoru. Celková zastavenost objektu 1698 m2.

Objekt nabízí širokou škálu využití, od konzervativního provozu bowlingu+ restaurace po možnost rozšíření provozu o ubytovací kapacity, případně agroturistiku, dětský tábor nebo kemp pro obytné vozy.

Objekt obklopují pozemky v celkové výměře více jak 6.700 m2 plochy.

Areál napojen na elektřinu, voda z vlastního zdroje mimo areál, odpad řešen čističkou odpadních vod. O topení se stará klimatizační systém spolu se vzduchotechnikou. V bytové jednotce 2 klimatizační nízkoenergetické jednotky, s další možností vytápění tuhými palivy.

Závěrem - za cenu hrubé stavby se nabízí funkční nemovitost s obrovským potenciálem se zavedenou klientelou, s bydlením v mezonetovém bytě v panenské přírodě s dojezdovou vzdáleností 9 km od Švihova.

Budu se na Vás těšit na prohlídce. S financováním Vám pomůže náš finanční specialista. V případě více zájemců o nemovitost, si majitel vyhrazuje právo prodat nemovitost zájemci s nejvyšší nabídkou.

Druh objektu Cihlová
Stav objektu Dobrý
Počet podlaží objektu 1
Typ objektu Řadový
Typ domu Přízemní
Garáž Ano
Zdroj vody Místní zdroj
Rozvod topení Lokální tuhá paliva, Lokální elektrické
Typ odpadu ČOV pro celý objekt
Příjezdová komunikace Asfaltová, Neupravená
Elektřina 230V, 380V
Doprava Silnice
Plocha užitná 1698 m²
Celková plocha 6700 m²
Třída energetické náročnosti budovy G - mimořádně nehospodárná

ULOŽIT JAKO PDF

POSLAT EMAILEM

Umístění objektu

Kontaktní formulář

*
*
*

*

*

Potvrzuji, že v souvislosti s projevením zájmu o služby Swiss Life Select a.s. jsem se seznámil/a s Informačním memorandem pro potenciálního klienta a klienta.

Podobné nabídky