Prodej chalupy 80 m2, Golčův Jeníkov

Užitná plocha: 80 m2 Pokojů: 3 Číslo zakázky: 24771
Název: Prodej chalupy 80 m2, Golčův Jeníkov
Celková cena: 4 900 000 Kč
Adresa: Golčův Jeníkov
Datum aktualizace: 27.11.2025
Druh objektu: Smíšená
Stav objektu: Dobrý
Zástavba: Venkovská
Typ objektu: Samostatný
Typ domu: Přízemní
Umístění:

REZERVOVÁNO

Přináším příležitost pořídit z velké části velmi pěkně zrekonstruovanou chalupu (rodinný dům) s krásnou zahradou v obci Římovice u města Golčův Jeníkov.

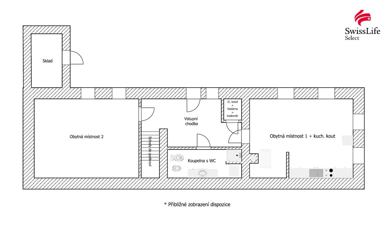
Chalupa nabízí celkem potenciálních cca 140 m² užitné plochy. V přízemí jsou na přibližně 80 m² obývací pokoj s kuchyňskou linkou, koupelna s WC, bidetem a sprch. koutem, technická komora s el. kotlem a další velká místnost (ložnice). V podkroví je připravených přibližně 60 m² plochy k dokončení použitelných jako další obyvatelný prostor.

Co se týče exteriéru, na přilehlé zahradě bylo nedávno vybudované příjemné sezení, je zde také dostatečný prostor pro gril, trampolínu a případně bazén. Dále náleží k chalupě dvě menší zděné skladovací budovy (kůlna, dřevník). K domu také patří z druhé strany další zahrada o ploše 158 m².

Užitková voda je obecní a její ohřev zajišťuje el. bojler. Vytápění má dům řešeno primárně el. kotlem s ohřevem a rozvodem vody do radiátorů. Příjemnou výhodou obývacího pokoje jsou ovšem stylová kachlová kamna. Odpad je sveden do jímky, ale do budoucna se nabízí možnost připojení na novou obecní kanalizaci, která je již připravena na hranici pozemku. Zalévání na zahradě je zajištěno vlastní studnou.

Malebná obec Římovice se nachází jen asi 3 km od Golčova Jeníkova. Je zde tedy téměř za rohem veškerá základní občanská vybavenost. Do větších měst je dojezdová vzdálenost velmi příjemná. Havl. Brod 25 km, Kutná Hora 30 km, Čáslav 10 km.

Pro domluvení prohlídky mne neváhejte kontaktovat.

Druh objektu Smíšená
Stav objektu Dobrý
Zástavba Venkovská
Typ objektu Samostatný
Typ domu Přízemní
Počet podlaží objektu 1
Zařízeno Ano
Parkování Ano
Sklep Ne
Garáž Ne
Bazén Ne
Zdroj vody Dálkový vodovod
Rozvod topení Lokální tuhá paliva, Ústřední elektrické
Typ odpadu Veřejná kanalizace, Jímka
Příjezdová komunikace Asfaltová
Plocha zastavěná 141 m²
Plocha užitná 80 m²
Plocha pozemku 697 m²
Rok rekonstrukce 2020
Třída energetické náročnosti budovy E - nehospodárná
Typ certifikátu podle vyhlášky č. 78/2013 Sb.
Energetický štítek Stáhnout

ULOŽIT JAKO PDF

POSLAT EMAILEM

Umístění objektu

Kontaktní formulář

*
*
*

*

*

Potvrzuji, že v souvislosti s projevením zájmu o služby Swiss Life Select a.s. jsem se seznámil/a s Informačním memorandem pro potenciálního klienta a klienta.

Podobné nabídky