Prodej bytu 3+1 74 m2 Brno

Užitná plocha: 74 m2 Číslo podlaží:5 Číslo zakázky: 24821
Celková cena: 8 500 000 Kč
Adresa: Brno
Datum aktualizace: 04.12.2025
Druh objektu: Panelová
Stav objektu: Velmi dobrý
Zástavba: Obytná
Vlastnictví: Osobní
Zařízeno:
Počet podlaží celkem: 8
Číslo podlaží: 5

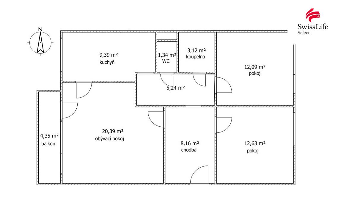
Nabízím Vám slunný a prostorný byt 3+1 v Novém Lískovci o velikosti 74 m². Je ideální pro pohodlné bydlení i jako investiční příležitost. Je připraven k okamžitému nastěhování nebo pronájmu. Obrovskou výhodou jsou tři neprůchozí pokoje a blízkost Lékařské fakulty Masarykovy univerzity.

Byt se nachází v pátém z celkových osmi podlaží panelového domu. Jeho okna jsou orientována na východ i západ, takže si můžete užívat denního světla po celý den. Kromě toho nabízí balkon s odpoledním sluncem, kde si pohodlně odpočinete po náročném dni.

Průběžná rekonstrukce a celková péče dodávají bytu punc moderního bydlení. Součástí bytu je nadčasová kuchyňská linka včetně spotřebičů a pračky, nově instalované vestavěné skříně se spoustou úložného prostoru a praktické vybavení jednotlivých pokojů. Koupelna s vanou a samostatné WC zajišťují pohodlí pro všechny obyvatele, ať už se jedná o klasickou rodinu, či studenty.

Centrální dálkové vytápění pak poskytuje komfort po celý rok. Parkování je možné přímo u domu a lokalita nabízí veškerou občanskou vybavenost včetně obchodů, supermarketů, restaurací, kaváren, škol, školek, zdravotního střediska a výborné dostupnosti MHD.

Pokud Vás moje nabídka zaujala, neváhejte a domluvte si termín své prohlídky, kde se na Vás bude těšit realitní makléřka Kateřina Sádovská.

Druh objektu Panelová
Stav objektu Velmi dobrý
Zástavba Obytná
Vlastnictví Osobní
Počet podlaží celkem 8
Číslo podlaží 5
Balkón Ano
Plocha balkónu 4 m²
Parkování Ne
Lodžie Ne
Terasa Ne
Sklep Ano
Plocha sklepa 5 m²
Garáž Ne
Plocha užitná 74 m²
Třída energetické náročnosti budovy G - mimořádně nehospodárná

ULOŽIT JAKO PDF

POSLAT EMAILEM

Umístění objektu

Kontaktní formulář

*
*
*

*

*

Potvrzuji, že v souvislosti s projevením zájmu o služby Swiss Life Select a.s. jsem se seznámil/a s Informačním memorandem pro potenciálního klienta a klienta.

Podobné nabídky