Sleva
Užitná plocha: 1285 m2
Víceúčelový komerční objekt s bytovými jednotkami Vám zajistí stabilní příjem a široké možnosti využití. Nabízíme k prodeji rozsáhlý komerční objekt se dvěma nadzemními podlažími a třemi bytovými jednotkami (5+1, 1+1 a 1+1), které jsou aktuálně pronajaté a generují stabilní příjem. Tato nemovitost představuje jedinečnou investiční příležitost s možností kombinace podnikání a bydlení. Budova má nové rozvody vody, jističe elektřiny a klimatizaci. Objekt nabízí variabilní využití podle vašich potřeb. V minulosti sloužil pro potravinářskou výrobu, nyní však díky funkčním výtahům a zachovaným chladicím a mrazicím prostorám poskytuje široké možnosti pro další podnikatelské aktivity. Je ideální volbou pro skladování, výrobu, distribuci či jiné komerční účely. Co nemovitost nabízí? • Pronajaté bytové jednotky, okamžitý zisk z nájemného. • Dvě nadzemní podlaží, variabilní uspořádání prostor. • Funkční technické zázemí, včetně výtahů. • Zachované chladicí a mrazicí prostory, možnost využití pro gastro, skladování či jiný provoz. • Strategická poloha, dobře dostupná lokalita pro podnikání. • Stavebně nezávislé prostory pro podnikání a bydlení, možnost kombinace nebo oddělení aktivit. Díky své poloze, dispozici a technickému zázemí se objekt hodí pro široké spektrum podnikání. Hledáte-li něco podobného, tak neváhejte a domluvte si termín prohlídky, kde se na Vás bude těšit makléřka Kateřina Sádovská. S financováním koupě nemovitosti je připraven Vám pomoci můj kolega. Ve Swiss Life Select poskytujeme nezávislé finanční poradenství na nejvyšší úrovni a našim klientům pomáháme žít život podle vlastních představ.
Více informací
12 990 000 Kč
Sleva
Užitná plocha: 158 m2 Pokojů:5 a více
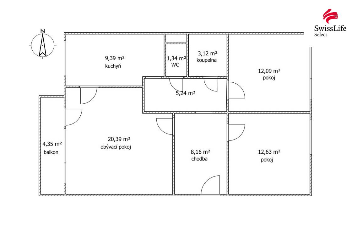
AKTUALIZACE CENY. V klidné obci Hřibsko, která spadá pod Stěžery, Vám nabízím ke koupi venkovský dům po rekonstrukci. Lokalita je ideální pro každého, kdo hledá klid a prostor, ale zároveň chce být za 10 minut v centru Hradce Králové. Nájezd na dálnici D11 je vzdálen necelých 5 minut. Dům má v současnosti otevřenou dispozici 5+2, ale díky zachovaným samostatným vstupům je možné jej opět rozdělit na dvě bytové jednotky – větší 3+1 a menší 2+kk. Tato varianta je ideální pro dvougenerační bydlení nebo kombinaci vlastního bydlení a pronájmu. Všechny vnitřní prostory o celkové výměře 158 m² jsou účelně a prakticky uspořádané. Součástí domu je také garáž a kotelna. Nad celým domem, včetně garáže a technického zázemí, se nachází rozsáhlá půda o ploše 312 m², která nabízí jedinečný potenciál pro vybudování dalších bytových jednotek se samostatným vstupem z opačné strany domu. O vytápění se stará kotel na tuhá paliva, samozřejmostí je elektřina a městský vodovod. Čistírna odpadních vod zajišťuje ekologický a úsporný provoz. Celková rozloha pozemku je 988 m². Interiér je kompletně hotový a připravený k nastěhování. Zachované klenuté stropy a původní prvky podtrhují osobitý styl domu, který zároveň nabízí plnohodnotné moderní bydlení. Fasáda zůstává jako poslední nedokončená část. Novému majiteli dává možnost doladit vzhled podle svých představ. Tento dům je ideální pro rodinu, vícegenerační bydlení nebo investiční záměr. Klidná lokalita s přírodou na dosah ruky a perfektní dostupnost města z něj dělá neopakovatelnou příležitost pro vaše nové bydlení. Neváhejte a domluvte si termín prohlídky, kde se na Vás bude těšit makléřka Kateřina Sádovská.
Více informací
10 950 000 Kč
Rezervace
Plocha: Podlaží: 8
Nabízím Vám slunný a prostorný byt 3+1 v Novém Lískovci o velikosti 74 m². Je ideální pro pohodlné bydlení i jako investiční příležitost. Je připraven k okamžitému nastěhování nebo pronájmu. Obrovskou výhodou jsou tři neprůchozí pokoje a blízkost Lékařské fakulty Masarykovy univerzity. Byt se nachází v pátém z celkových osmi podlaží panelového domu. Jeho okna jsou orientována na východ i západ, takže si můžete užívat denního světla po celý den. Kromě toho nabízí balkon s odpoledním sluncem, kde si pohodlně odpočinete po náročném dni. Průběžná rekonstrukce a celková péče dodávají bytu punc moderního bydlení. Součástí bytu je nadčasová kuchyňská linka včetně spotřebičů a pračky, nově instalované vestavěné skříně se spoustou úložného prostoru a praktické vybavení jednotlivých pokojů. Koupelna s vanou a samostatné WC zajišťují pohodlí pro všechny obyvatele, ať už se jedná o klasickou rodinu, či studenty. Centrální dálkové vytápění pak poskytuje komfort po celý rok. Parkování je možné přímo u domu a lokalita nabízí veškerou občanskou vybavenost včetně obchodů, supermarketů, restaurací, kaváren, škol, školek, zdravotního střediska a výborné dostupnosti MHD. Pokud Vás moje nabídka zaujala, neváhejte a domluvte si termín své prohlídky, kde se na Vás bude těšit realitní makléřka Kateřina Sádovská.
Více informací
8 290 000 Kč
Sleva
Užitná plocha: 150 m2 Pokojů:5 a více
Hledáte rodinný dům, kde se ihned cítíte jako doma? Tento prostorný dům s dispozicí 5+kk a garáží nabízí vše, co potřebujete pro pohodlný život – a ještě něco navíc. Soukromý dvorek je ideálním místem pro odpočinek a grilování. A pokud sníte o vlastním bazénu, místa je tu dost. Dům se nachází v klidné části obce Holešovice u Chroustovic, odkud to máte na dosah do Chrudimi, Vysokého Mýta i Pardubic. Perfektní kombinace venkovského klidu a městské dostupnosti. Během rekonstrukce došlo k modernizaci technických instalací a rozšíření obytného prostoru do podkroví. Interiér si uchoval svůj útulný, venkovský charakter a zároveň nabízí prostor pro úpravy podle vašich představ. Vznikly zde čtyři světlé pokoje, koupelna s toaletou a praktická místnost, kterou můžete využít jako šatnu, pracovnu nebo pokoj pro hosty. Za hlavními dveřmi vás uvítá vstupní chodba, odkud projdete do vzdušného obývacího pokoje spojeného s kuchyňským koutem. Dominantou tohoto prostoru je stylový krb, který se postará nejen o příjemné teplo, ale i o jedinečnou atmosféru domova. Večer u praskajícího ohně si prostě zamilujete. V přízemí nechybí ani prostorná koupelna s vanou, toaletou a sprchovým koutem. Součástí domu je garáž a sklad s přístupem do sklepa o výměře 16 m² – ideální pro uložení sezónních věcí nebo sportovního vybavení. O teplo se stará plynový kotel, dům je napojen na elektřinu, veřejný vodovod a obecní kanalizaci. Celková užitná plocha je 150 m², pozemek má rozlohu 178 m². Pokud hledáte domov, kde se snoubí praktičnost, útulná atmosféra a klidná lokalita, právě jste ho našli. Neváhejte a domluvte si termín prohlídky, kde se na Vás bude těšit makléřka Kateřina Sádovská.
Více informací
6 490 000 Kč
Novinka
Plocha celková : 75919 m2
Nabízím k prodeji soubor zemědělských pozemků nacházejících se v katastrálním území Knínice u Boskovic. Pozemky jsou zapsány v katastru nemovitostí na listu vlastnictví č. 834 a jsou ve výlučném, tedy 100% vlastnictví, bez spoluvlastnických podílů. Celková výměra činí 75 919 m². V současné době jsou pozemky pronajaté k hospodaření s možností pokračování pachtu. Významná část výměry, konkrétně 42 021 m², se nachází ve vyšší střední třídě bonity půdy (BPEJ), což představuje kvalitní půdu s dobrou produkční schopností. Pozemky jsou rovinaté a dobře přístupné z polní cesty. Díky svým parametrům jsou vhodné jak k zemědělskému hospodaření, tak jako dlouhodobá investice. V případě zájmu o více informací mě neváhejte kontaktovat.
Více informací
3 799 000 Kč
Sleva
Užitná plocha: 50 m2 Pokojů:3
Dům s charakterem, který čeká na šikovné ruce a nové nápady. Žádné kompromisy – jen čistý potenciál. Odměnou vám bude příroda, soukromí a kouzlo starých časů. Dispozice zahrnuje tři obytné místnosti, které si můžete upravit podle vlastních představ. Součástí je také prostorná stodola a půda, ideální například pro dílnu a úložné prostory. Všechny inženýrské sítě – voda, elektřina, plyn i kanalizace – jsou již přivedeny, což znamená solidní základ pro novou etapu života. Dle územního plánu je pozemek určen k venkovskému bydlení, což ponechává široké možnosti využití – ať už sníte o klidném domově, víkendové chalupě nebo originálním venkovském stylu života. Milovníci přírody si přijdou na své při toulkách do nedalekých lesů, houbaření nebo cyklovýletech po klidné, rovinaté krajině plné zeleně. V okolních obcích najdete tradiční trhy, lokální produkty i přátelskou komunitu. V létě osvěží koupání v přírodních rybnících, v zimě se nabízí romantické procházky zasněženou přírodou nebo běžky. Místo, které vás nesvazuje, ale dává prostor tvořit budoucnost podle vlastních pravidel. To vše jen necelých 30 minut jízdy z Pardubic nebo Hradce Králové – ideální místo pro víkendový odpočinek i delší útěk z města. Pokud Vás tato nabídka zaujala, zavolejte a domluvte si osobní prohlídku, kde se na Vás bude těšit realitní makléřka Kateřina Sádovská.
Více informací
1 490 000 Kč
Plocha: Podlaží: 2
Představte si život v místě, kde se lidé zdraví, zastaví na pár slov a umí se podělit o radost ze všedního dne. A když se večer vrátíte domů, čeká na vás prostorný podkrovní byt o velikosti 85 m² a dispozici 3+kk – místo, kde najdete klid, soukromí a opravdový pocit domova. Hledáme nejen nájemníky, ale hlavně dobré sousedy, kteří ocení kouzlo tohoto místa. Světlý obývací prostor propojený s moderním kuchyňským koutem je ideální pro společné chvíle s rodinou či přáteli. Dvě neprůchozí ložnice vám zajistí pohodlí a podkrovní charakter dodává celému interiéru jedinečnou atmosféru. Po domluvě můžete využívat i zahradní pergolu – skvělé místo pro relaxaci, letní grilování nebo odpolední čtení. Bydlet budete v klidném prostředí s atmosférou venkova, a přitom jen 6 km od okresního města Jičín. Do centra se pohodlně dostanete pravidelným autobusovým i vlakovým spojením. Rovněž parkování u domu je bezproblémové. Pokud hledáte pronájem, který kombinuje velkorysý prostor, útulné zázemí, příjemné sousedy a kousek venkova, přijďte se přesvědčit na vlastní oči. Tenhle byt je místo, kde se budete cítit opravdu dobře. Náklady na bydlení jsou stanovené zálohově ve výši 3000,-Kč. Elektřina Vám bude vyúčtována na základě odečtu elektroměru pronajímatelem. Skládá se vratná kauce ve výši 30000,-Kč, provize pro realitní kancelář činí 15.490,-Kč. Pokud Vás tato nabídka zaujala, neváhejte a domluvte si termín prohlídky, kde se na Vás bude těšit realitní makléřka Kateřina Sádovská.
Více informací
15 450 Kč