Prodej bytu 2+1 58 m2, Větrný Jeníkov

Užitná plocha: 58 m2 Číslo podlaží:3 Číslo zakázky: 25113
Celková cena: 3 250 000 Kč
Adresa: Větrný Jeníkov
Datum aktualizace: 07.03.2026
Druh objektu: Panelová
Stav objektu: Dobrý
Zástavba:
Vlastnictví: Osobní
Zařízeno:
Počet podlaží celkem: 3
Číslo podlaží: 3

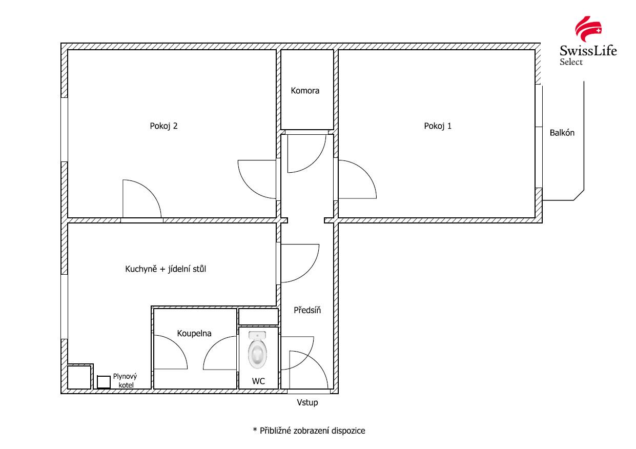
Nabízím ke koupi bytovou jednotku o dispozici 2+1 a ploše přibližně 58 m² ve Větrném Jeníkově. Byt je umístěn ve 3. nadzemním podlaží z celkových 3 v zatepleném bytovém domě o sedmi bytech bez výtahu.

K bytu náleží sklepní kóje v přízemí o ploše přibližně 1,5 m² a 2 m² balkón na jižní straně. Vytápění a ohřev vody jsou řešeny vlastním plynovým kotlem.

Parkování pohodlné přímo před bytovým domem.

Větrný Jeníkov je vyhledávaný městys s kompletní občanskou vybaveností – mateřská a základní škola, obchody, restaurace, pošta i sportovní areál. Výborná dostupnost do Jihlavy a rychlé napojení na D1 zajišťují pohodlné každodenní dojíždění.

K bytu je možné za zvýhodněnou cenu dokoupit pár set metrů vzdálenou zahradu o velikosti 308 m². Cena samostatně 390.000 Kč, ceny s tímto bytem 300.000 Kč.
https://www.sreality.cz/detail/prodej/pozemek/zahrada/vetrny-jenikov-vetrny-jenikov-/3422442316

Pro domluvení prohlídky neváhejte zavolat.

Druh objektu Panelová
Stav objektu Dobrý
Vlastnictví Osobní
Počet podlaží celkem 3
Číslo podlaží 3
Balkón Ano
Plocha balkónu 2 m²
Parkování Ano
Lodžie Ne
Terasa Ne
Sklep Ano
Garáž Ne
Zdroj vody Dálkový vodovod
Rozvod topení Lokální plynové
Plocha užitná 58 m²
Třída energetické náročnosti budovy G - mimořádně nehospodárná

ULOŽIT JAKO PDF

POSLAT EMAILEM

Umístění objektu

Kontaktní formulář

*
*
*

*

*

Potvrzuji, že v souvislosti s projevením zájmu o služby Swiss Life Select a.s. jsem se seznámil/a s Informačním memorandem pro potenciálního klienta a klienta.

Podobné nabídky