Prodej stavebního pozemku 607 m2, Kozlov |
|
| Plocha celková: 607 m2 | Číslo zakázky: 24655 |
| Název: | Prodej stavebního pozemku 607 m2, Kozlov | Celková cena: |
3 400 Kč (Za m2)
2 063 800 Kč
|
| Adresa: | Kozlov |
| Datum aktualizace: | 06.03.2026 |
| Stavba: | |
| Zástavba: | Obytná |
| Ochrana: | |
| Umístění: | |
| Zdroj vody: | Dálkový vodovod |
| Celková plocha: | 607 m² |
Chcete koupit pozemek a obratem začít stavět? Zde je díky platnému stavebnímu povolení taková příležitost.
Nabízíme k prodeji rovinatý pozemek v obci Kozlov u Jihlavy. Jedná se o velmi atraktivní lokalitu, která kombinuje klid venkovského prostředí s výbornou dostupností do krajského města Jihlava, kam se pohodlně dostanete během několika minut jízdy. To samé platí i o nájezdu na dálnici D1. Pozemek se nachází v obci s funkčním zázemím – najdete zde mateřskou a základní školu, hospodu, obchod nebo sportovní areál.
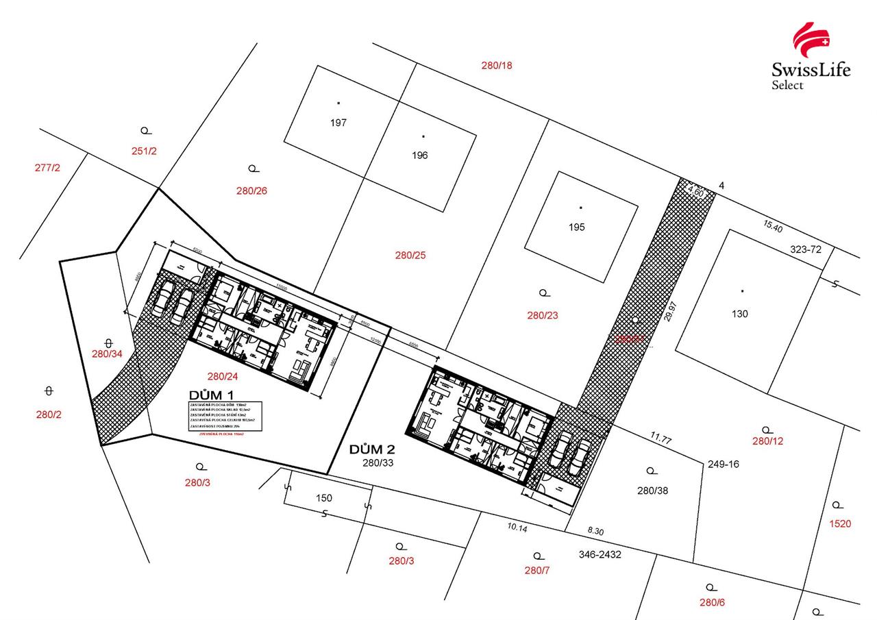
Samotný pozemek je rovinatý, s kvalitní půdou a nabízí ideální podmínky pro výstavbu rodinného domu. Možností je také na již rozděleném pozemku postavit dva rodinné domy s tím, že každý by měl svoje napojení na sítě a svůj příjezd, jak je patrno z mapky a přiložené studie. Zde se tedy jedná o prodej menší části nabízeného pozemku, a to o velikosti 607 metrů.
Na pozemku je k dispozici dřevěná kůlna k uložení nářadí, což se na stavbě vždy hodí. Veškeré inženýrské sítě se nacházejí na hranici pozemku, což výrazně usnadňuje napojení a snižuje náklady na budoucí výstavbu.
Kozlov je vyhledávanou lokalitou díky své poloze, příjemné atmosféře a okolní přírodě. Místo je ideální pro ty, kteří hledají klidné bydlení s veškerým komfortem a rychlým spojením do města.
Pro více informací nebo sjednání prohlídky nás neváhejte kontaktovat. Rádi Vám poskytneme veškeré detaily a pomůžeme i s kompletním právním a finančním servisem.
| Zástavba | Obytná |
| Zdroj vody | Dálkový vodovod |
| Rozvod plynu | Plynovod |
| Typ odpadu | Veřejná kanalizace |
| Celková plocha | 607 m² |
Umístění objektu
Plocha celková: 774 m2
Chcete koupit pozemek a obratem začít stavět? Zde je díky platnému stavebnímu povolení taková příležitost. Nabízíme k prodeji rovinatý pozemek v obci Kozlov u Jihlavy. Jedná se o velmi atraktivní lokalitu, která kombinuje klid venkovského prostředí s výbornou dostupností do krajského města Jihlava, kam se pohodlně dostanete během několika minut jízdy. To samé platí i o nájezdu na dálnici D1. Pozemek se nachází v obci s funkčním zázemím – najdete zde mateřskou a základní školu, hospodu, obchod nebo sportovní areál. Samotný pozemek je rovinatý, s kvalitní půdou a nabízí ideální podmínky pro výstavbu rodinného domu. Možností je také na již rozděleném pozemku postavit dva rodinné domy s tím, že každý by měl svoje napojení na sítě a svůj příjezd, jak je patrno z mapky a přiložené studie. Zde se tedy jedná o prodej větší části nabízeného pozemku, a to o velikosti 774 metrů. Na pozemku je k dispozici dřevěná kůlna k uložení nářadí, což se na stavbě vždy hodí. Veškeré inženýrské sítě se nacházejí na hranici pozemku, což výrazně usnadňuje napojení a snižuje náklady na budoucí výstavbu. Kozlov je vyhledávanou lokalitou díky své poloze, příjemné atmosféře a okolní přírodě. Místo je ideální pro ty, kteří hledají klidné bydlení s veškerým komfortem a rychlým spojením do města. Pro více informací nebo sjednání prohlídky nás neváhejte kontaktovat. Rádi Vám poskytneme veškeré detaily a pomůžeme i s kompletním právním a finančním servisem.
Více informací
3 600 Kč
Plocha celková: 1381 m2
Chcete koupit pozemek a obratem začít stavět? Zde je díky platnému stavebnímu povolení taková příležitost. Nabízíme k prodeji rovinatý pozemek v obci Kozlov u Jihlavy. Jedná se o velmi atraktivní lokalitu, která kombinuje klid venkovského prostředí s výbornou dostupností do krajského města Jihlava, kam se pohodlně dostanete během několika minut jízdy. To samé platí i o nájezdu na dálnici D1. Pozemek se nachází v obci s funkčním zázemím – najdete zde mateřskou a základní školu, hospodu, obchod nebo sportovní areál. Veškeré inženýrské sítě se nacházejí na hranici pozemku, což výrazně usnadňuje napojení a snižuje náklady na budoucí výstavbu. Samotný pozemek je rovinatý, s kvalitní půdou a nabízí ideální podmínky pro výstavbu rodinného domu. Možností je také na již rozděleném pozemku postavit dva rodinné domy s tím, že každý by měl svoje napojení na sítě a svůj příjezd, jak je patrno z mapky a přiložené studie. Na pozemku je k dispozici dřevěná kůlna k uložení nářadí, což se na stavbě vždy hodí. Kozlov je vyhledávanou lokalitou díky své poloze, příjemné atmosféře a okolní přírodě. Místo je ideální pro ty, kteří hledají klidné bydlení s veškerým komfortem a rychlým spojením do města. Pro více informací nebo sjednání prohlídky nás neváhejte kontaktovat. Rádi Vám poskytneme veškeré detaily a pomůžeme i s kompletním právním a finančním servisem.
Více informací
3 500 Kč