Prodej rodinného domu 290 m2 Ke Džbánu, Praha

Užitná plocha: 290 m2 Pokojů: 5 a více Číslo zakázky: 24353
Název: Prodej rodinného domu 290 m2 Ke Džbánu, Praha
Celková cena: 29 990 000 Kč

Včetně provize RK
poznámka k ceně

Adresa: Ke Džbánu , Praha
Datum aktualizace: 10.09.2025
Druh objektu: Cihlová
Stav objektu: Před rekonstrukcí
Zástavba: Obytná
Typ objektu: Řadový
Typ domu: Patrový
Umístění: Klidná část obce

Rodinný dům v klidné ulici Ke Džbánu, jen 3 minuty chůze od tramvajové zastávky Divoká Šárka. Přímý výhled do zeleně, skvělá dostupnost do centra i na letiště, přírodní rezervace za rohem.

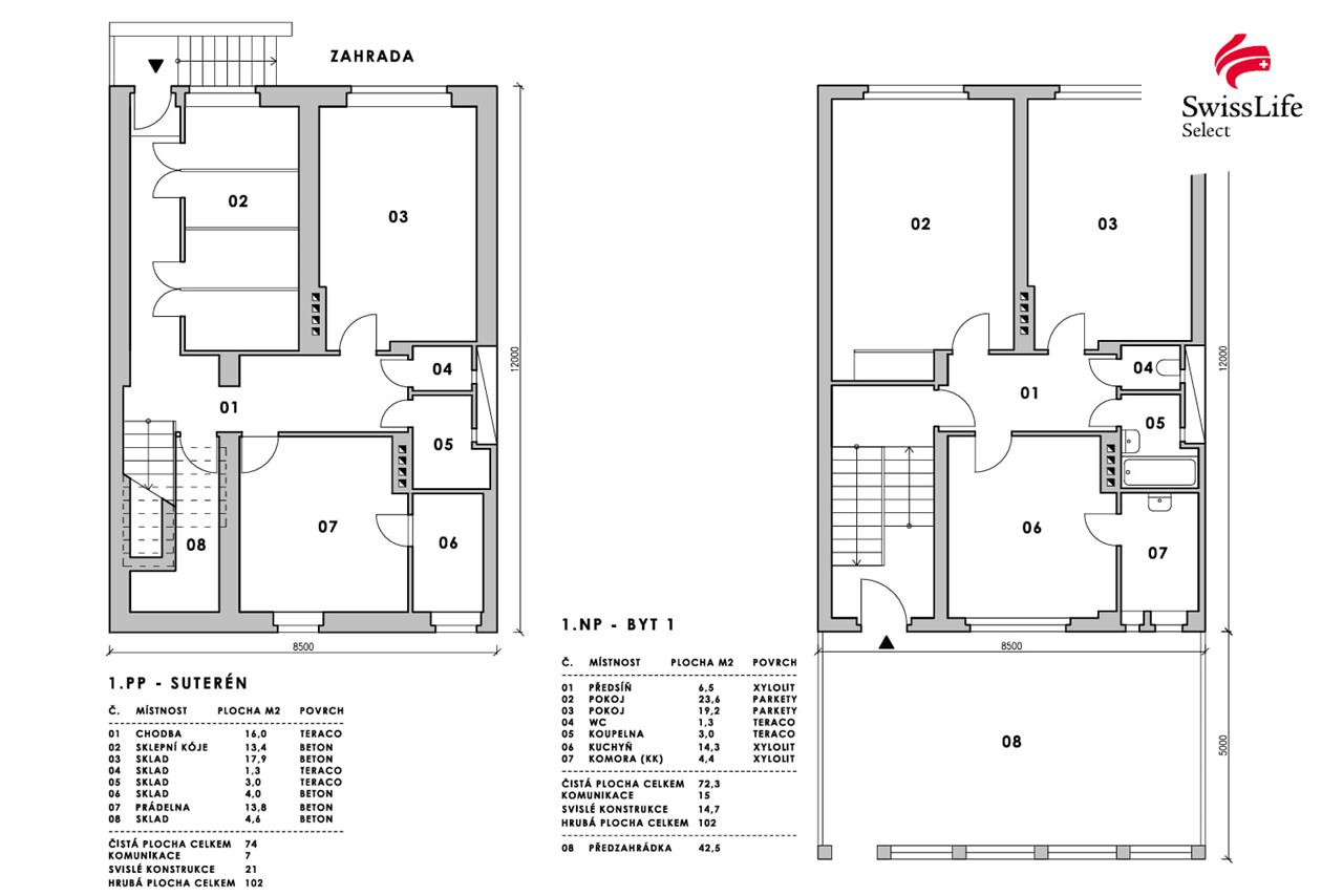
Čtyři nadzemní podlaží včetně půdy a jedno podzemní. Každé patro má výměru cca 102 m², celková užitná plocha tedy činí 408 m². Na pozemku o celkové výměře 332 m² se nachází také zahrada o rozloze 230 m². Dispozice domu je aktuálně připravena pro 5 samostatných bytových jednotek, zapsání v katastru zatím neproběhlo. Půdní prostor umožňuje další rozšíření – například o dvě další bytové jednotky.

Stav nemovitosti vyžaduje kompletní rekonstrukci. Požár způsobený nedopalkem zanechal interiér začouzený, statika i konstrukce domu však zůstaly neporušené. Majitel již zahájil výmalbu a základní obnovu prostoru.

Investiční potenciál je zásadní. Vzniknout může projekt nájemního bydlení, bytový dům k prodeji nebo vícegenerační rodinné bydlení.
Dům není zatížen právními vadami a je ihned k dispozici.

Zaujalo Vás to? Zavolejte si a rovnou si domluvte prohlídku.
Podobné příležitosti v této části Prahy se objevují jen výjimečně.

Druh objektu Cihlová
Stav objektu Před rekonstrukcí
Zástavba Obytná
Typ objektu Řadový
Typ domu Patrový
Umístění Klidná část obce
Počet podlaží objektu 3
Stavba Rodinný dům
Zařízeno Částečně
Výtah Ne
Půdní vestavba Ano
Podzemní podlaží 1
Parkování Ne
Sklep Ano
Plocha sklepa 102 m²
Garáž Ne
Bazén Ne
Zdroj vody Dálkový vodovod
Doprava Vlak, MHD, Autobus
Plocha zastavěná 102 m²
Plocha užitná 290 m²
Plocha podlahová 408 m²
Plocha pozemku 374 m²
Plocha zahrady 230 m²
Rok výstavby 1939
Třída energetické náročnosti budovy G - mimořádně nehospodárná

ULOŽIT JAKO PDF

POSLAT EMAILEM

Umístění objektu

Kontaktní formulář

*
*
*

*

*

Potvrzuji, že v souvislosti s projevením zájmu o služby Swiss Life Select a.s. jsem se seznámil/a s Informačním memorandem pro potenciálního klienta a klienta.

Podobné nabídky