Prodej bytu 4+1 105 m2 Masná, Studená

Užitná plocha: 105 m2 Číslo podlaží:1 Číslo zakázky: 24482
Celková cena: 3 470 000 Kč
Adresa: Masná, Studená
Datum aktualizace: 10.09.2025
Druh objektu: Cihlová
Stav objektu: Dobrý
Zástavba:
Vlastnictví: Osobní
Zařízeno:
Počet podlaží celkem: 3
Číslo podlaží: 1

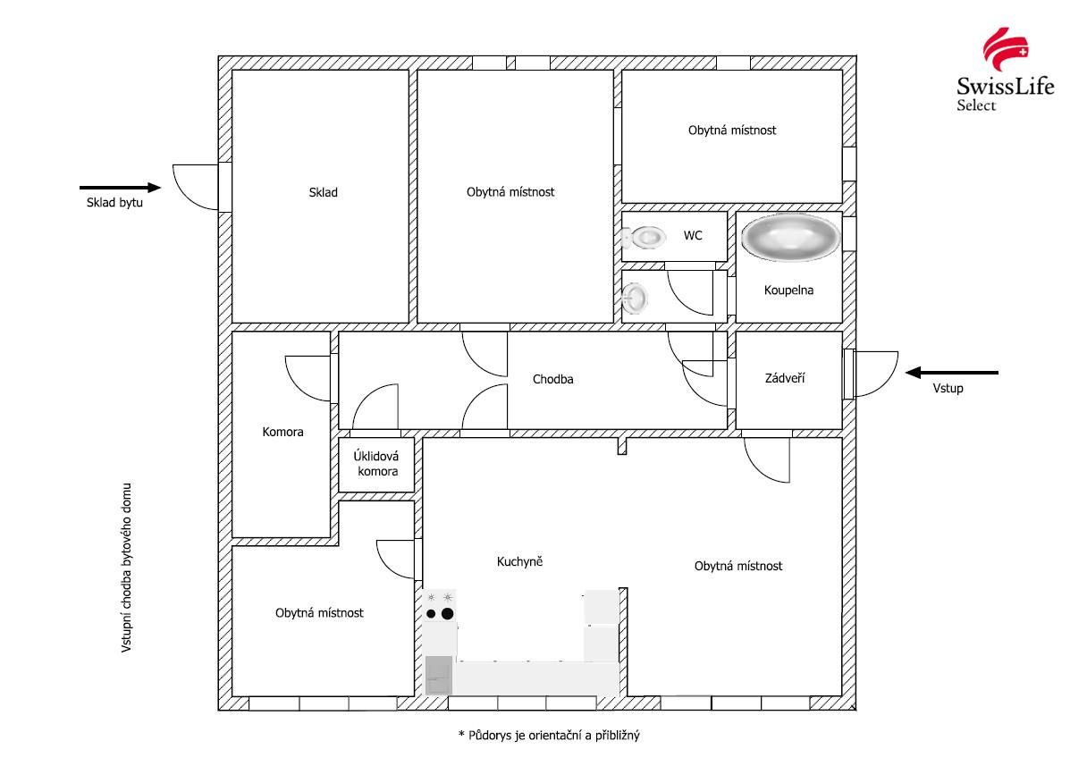
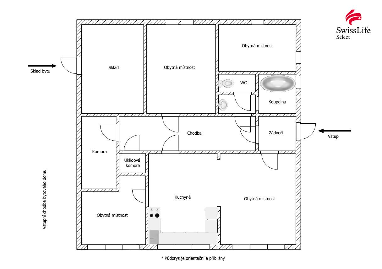
Přináším možnost pořídit si opravdu velký byt o dispozici 4+1 a ploše přibližně 105 m² s vlastním vstupem nacházející se v přízemí 3-podlažního bytového domu na ulici Masná v obci Studená.

Bytová jednotka je velmi prostorná a dobře prosvětlená díky pozici větších obytných místností na jihovýchodní stranu. Menší obytné místnosti mají okna na severní a východní stranu. K bytu náleží i sklad 15 m² přístupný z chodby bytového domu. Vytápění je centrální teplovodní s měřidly na radiátorech.

Obec Studená se nachází přibližně na půli cesty mezi Jindř. Hradcem a Telčí. Občanská vybavenost je velmi dobrá a zahrnuje např. mateřskou a základní školu, knihovnu, obecní úřad s matričním a stavebním úřadem, poštu, bankomat, obchody s potravinami, oblečením a domácími potřebami, zdravotní středisko, lékárnu, čerpací stanici, sportovní areál s fotbalovým hřištěm a tenisovými kurty atd.

Pro domluvení prohlídky zavolejte nebo vyplňte formulář.

Druh objektu Cihlová
Stav objektu Dobrý
Vlastnictví Osobní
Počet podlaží celkem 3
Číslo podlaží 1
Balkón Ne
Parkování Ano
Lodžie Ne
Terasa Ne
Sklep Ano
Plocha sklepa 15 m²
Garáž Ne
Plocha užitná 105 m²
Třída energetické náročnosti budovy G - mimořádně nehospodárná

ULOŽIT JAKO PDF

POSLAT EMAILEM

Umístění objektu

Kontaktní formulář

*
*
*

*

*

Potvrzuji, že v souvislosti s projevením zájmu o služby Swiss Life Select a.s. jsem se seznámil/a s Informačním memorandem pro potenciálního klienta a klienta.

Podobné nabídky